Appointments are recommended. Click Here to request your personalized appointment.

3463 East NC 24 Hwy
Beulaville, NC 28518

Mon - Fri: 9:00AM – 5:30PM
Sat: 9:00AM – 4:00PM
Sun: Closed

Kritzer

Champion Homes
Manufactured
New Plan
*Some exterior features shown and listed are optional. All features and options shown may not be available on all models. Please check with your Home Consultant for availability and pricing.
1699

Square Feet

3

Bedrooms

2

Bathrooms

Floor Plan Features

Home Office
Kitchen Island
Walk-in Pantry
Walk-in Shower

Share this floor plan.

Request More Information

Name(Required)
I own land or have land for my new home:(Required)
Trade-In?

Gallery

Click images to enlarge. Some images may not be of actual lot model.

All sizes and dimensions are nominal or based on approximate builder measurements. Down East Homes of Beulaville reserves the right to make changes due to any changes in material, color, specifications, and features anytime without notice or obligations.

Virtual Tour (if available)

Discover the Details That Make This Manufactured Home Fit Your Lifestyle

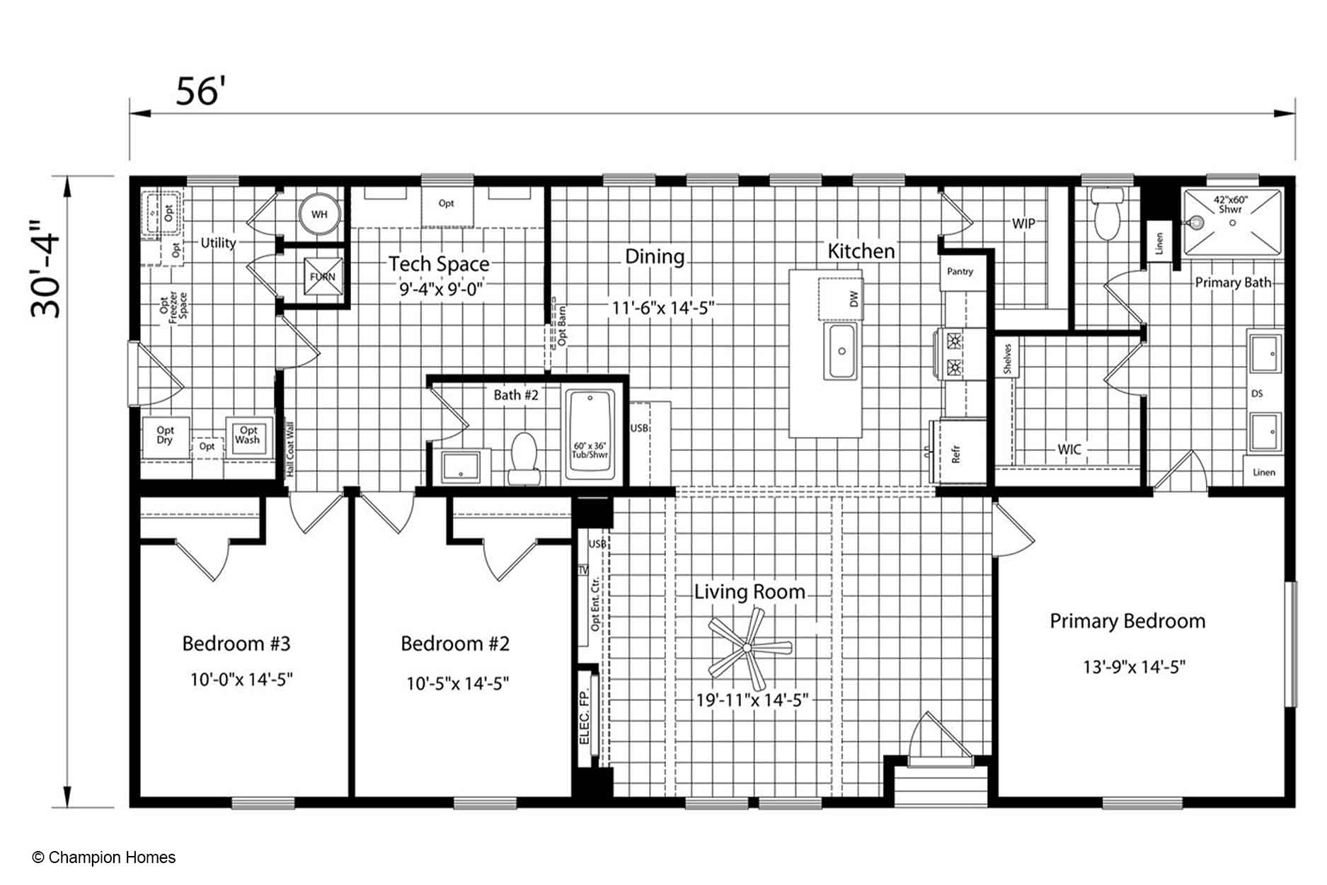
This thoughtfully designed 1,699 square foot manufactured home available in Beulaville, NC, offers a functional, family-friendly layout that makes everyday living and entertaining feel effortless. With spacious bedrooms, an open-concept kitchen, and even a dedicated tech space, this floor plan has room for every part of your life.

Main Living Areas

  • Living Room
  • Bright and open with front-facing windows
  • Perfect for gathering, relaxing, or movie nights
  • An Optional electric fireplace adds a cozy touch

Kitchen

  • Central island with sink, built-in dishwasher, and seating space
  • Ample counter space for meal prep
  • Walk-in pantry and built-in shelves for extra storage
  • Positioned between the dining area and primary suite for easy access

Dining Area

  • Open to both the kitchen and the living room
  • Large enough for a family table and ideal for entertaining

Bedrooms

  • Primary Bedroom
    • Privately located at one end of the home
    • Spacious layout with room for a king bed and more
    • Features a large walk-in closet
  • Primary Bath
    • Double sink vanity for convenience
    • 42″x60″ walk-in shower
    • Linen closet and a separate toilet area for privacy
  • Bedroom #2 and Bedroom #3
    • Located on the opposite end of the home for privacy
    • Ideal for children, guests, or even a home office
    • Share Bath #2, which includes a full-size tub/shower

Bonus Spaces

Tech Space

  • Perfect for remote work, homework, or hobbies
  • Central location keeps you connected without sacrificing focus

Utility Room

  • Space for optional washer/dryer and freezer
  • Rear entrance provides a mudroom-style drop zone
  • Additional storage for cleaning supplies, coats, or pantry overflow

Additional Features

  • Multiple layout and storage options to suit your lifestyle
  • Smartly placed windows bring in natural light throughout

This home offers flexibility, comfort, and modern style, whether you’re hosting friends, managing a busy household, or just enjoying a quiet evening in. Imagine your family living here, growing here, and making memories that last a lifetime.

Scroll to Top